3-к, Димитрова, 58 Показать на карте
Володарский район
Брянск
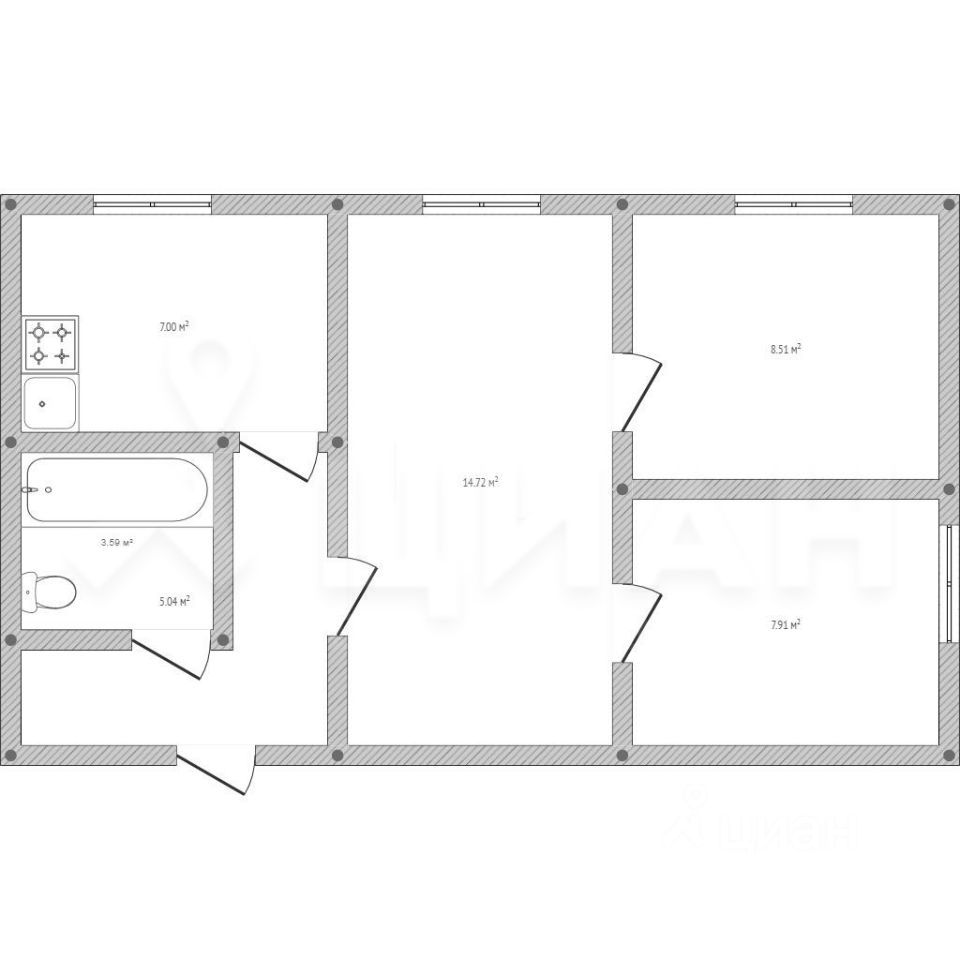
В продаже просторная 3-комнатная квартира площадью 131м2, расположенная на 3 этаже 9-ти этажного кирпичного дома 2004 г. постройки, в Володарском р-не г.Брянска. В квартире выполнен хороший ремонт из качественных материалов. Комнаты светлые, просторные и очень теплые, две застекленные и достаточно большие лоджии(в одну вход из кухни, в другую из спальни), большая кладовая с возможностью использования под гардеробную. Два больших санузла, в одном из которых установлена большая гидромассажная ванная и душевая кабина. Закрытая огороженная территория, во дворе спортивная и игровая площадки, достаточно места для парковки, рядом платная стоянка. Развитая инфраструктура: в шаговой доступности - ж/д вокзал, детский сад, школа, парк отдыха, остановка общественного транспорта- возможность доехать в любой р-н города. Покупая с нами, вы получаете гарантию безопасности, юридическое сопровождение на всех этапах сделки. Мы являемся центром ипотечного кредитования, помогаем нашим клиентам с выбором оптимальной программы ипотечного кредитования на выгодных клиенту условиях. ЗАИНТЕРЕСОВАЛО ПРЕДЛОЖЕНИЕ!? ЗВОНИТЕ!!! РАССКАЖУ ВСЕ ПОДРОБНО. Код пользователя: 120489Номер в базе: 3239018
131 м2
3 / 9 этаж
Кирпич
- Показать контакты
- Добавить в избранное
131 м2
3 / 9 этаж
Кирпич
10 600 000
80 731 /м2
