2-к, Московский микрорайон, 42/2 Показать на карте
Бежицкий район
Брянск
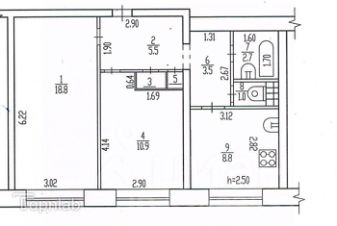
Арт. 86137699. Идеальное жилье для семьи или тех, кто ценит комфорт и пространство!Предлагается к продаже уютная и светлая двухкомнатная квартира, расположенная в Бежицком районе, Московский микрорайон, дом 42/2.Квартира находится на 6 этаже 11-этажного кирпичного дома.Общая площадь квартиры составляет 69,4 кв.м, жилая 38,1 кв.м, а площадь кухни 13,4 кв.м.Преимущества квартиры:Отличная планировка: изолированные комнаты обеспечивают приватность и удобство для каждого члена семьи.Качественный ремонт: можно сразу заехать и жить, не тратя время и средства на ремонт. Санузел совмещенный, отделан плиткой.Утепленная лоджия: прекрасное место для организации кабинета или зоны отдыха. Имеется кладовая с пластиковыми дверьми , оборудованная полками.Закрытый тамбур на две квартиры: дополнительное пространство для хранения вещей и поддержания чистоты.В квартире остается кухонный гарнитур (за исключением плиты, вытяжки и духового шкафа), а также сантехника (в том числе ванна, душевая кабина).Благоустроенный двор с детской площадкой и парковкой позволит вам и вашим детям наслаждаться активным отдыхом на свежем воздухе.Развитая инфраструктура: в шаговой доступности находятся торговые центры, магазины, спортивно-развлекательные площадки, детские сады (147, 155), гимназия 5.Дом расположен в экологически чистом районе города, что гарантирует свежий воздух и спокойствие. Недалеко от дома есть прекрасный пляж.Два взрослых собственника.Не упустите свой шанс стать обладателем этой прекрасной квартиры!Звоните прямо сейчас и записывайтесь на просмотр!
69 м2
6 / 11 этаж
Кирпич
- Показать контакты
- Добавить в избранное
69 м2
6 / 11 этаж
Кирпич
6 500 000
93 660 /м2
