Если цена в объявлении изменится, мы сразу сообщим вам об этом на электронную почту.
Нажимая «Подписаться», вы соглашаетесь с правилами.
продам 2-к, Богдана Хмельницкого, 794 000 000 ₽
26 янв
Дата публикации объявления
Обн. сегодня
Дата обновления объявления
1
Количество просмотров (+ просмотры за сегодня)
63 091 ₽/м²
Чистая продажа
Термин "Чистая продажа" означает, что в квартире никто не прописан или
есть куда выписаться и вывезти вещи. Это лучший вариант для покупателя.
Вероятность срыва сделки минимальна.
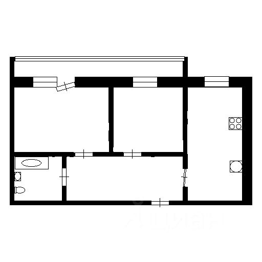
Продается просторная двухкомнатная квартира в Фокинском районе Брянска, полученная в результате грамотной перепланировки из трехкомнатной, что позволило создать более функциональное и современное жилое пространство. Квартира не угловая, что гарантирует комфортный температурный режим в любое время года. Объект полностью готов к заселению: в помещениях остаётся мебель, выполнены качественные отделочные работы — ровные стены, натяжные потолки по всей площади и надежные двойные стеклопакеты. Дополнительный комфорт обеспечивает установленный кондиционер.
Продается просторная двухкомнатная квартира в Фокинском районе Брянска, полученная в результате грамотной перепланировки из трехкомнатной, что позволило создать более функциональное и современное жилое пространство. Квартира не угловая, что гарантирует комфортный температурный режим в любое время года. Объект полностью готов к заселению: в помещениях остаётся мебель, выполнены качественные отделочные работы — ровные стены, натяжные потолки по всей площади и надежные двойные стеклопакеты. Дополнительный комфорт обеспечивает установленный кондиционер. Расположение является ключевым преимуществом: в пешей доступности находятся основные объекты инфраструктуры, включая сетевые магазины ''Пятерочка'' и ''Магнит'', общеобразовательные школы и детские сады, а также учреждения дополнительного развития — школа искусств и центр детского туризма. Это предложение сочетает в себе выгодное расположение в развитом районе, отличное состояние и продуманную планировку, что делает его оптимальным решением для жизни.