N1.RU — новая улучшенная версия Е1.Недвижимость
Хорошо
Чтобы вернуться на старый сайт Е1.Недвижимость, перейдите по ссылке в нижней части сайта N1.RU
Понятно
Продажа
Аренда
Новостройки
Журнал
Компании
Шаблоны документов
Налоговый вычет
Еще
Личный кабинет
Регистрация на Циан
Брянск
Добавить объявление
Недвижимость в Брянске
Аренда
Коммерческая
Универсальные помещения
В избранном
В избранное
Поделиться
Пожаловаться
Напечатать
сдам универсальное помещение
, Тельмана
, 68б
200 000 ₽ в месяц
20 ноя
Дата публикации объявления
Обн. 20 ноя
Дата обновления объявления
1
Количество просмотров (+ просмотры за сегодня)
869 ₽/м² в месяц
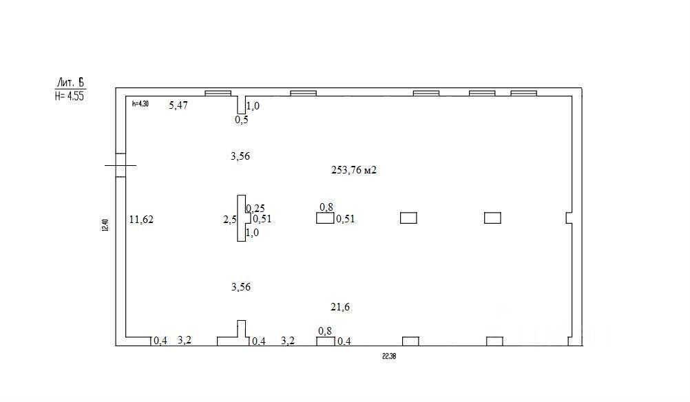
Параметры
Общая площадь
230 м
2
Этаж
1
отличное помещение для вашего бизнеса