Если цена в объявлении изменится, мы сразу сообщим вам об этом на электронную почту.
Нажимая «Подписаться», вы соглашаетесь с правилами.
продам 2-к, Абашева, 84 500 000 ₽
1 фев 2025
Дата публикации объявления
Обн. сегодня
Дата обновления объявления
4
Количество просмотров (+ просмотры за сегодня)
Спецпредложение
Турбо x8
76 923 ₽/м²
Чистая продажа
Термин "Чистая продажа" означает, что в квартире никто не прописан или
есть куда выписаться и вывезти вещи. Это лучший вариант для покупателя.
Вероятность срыва сделки минимальна.
Код объекта: 1381681. ПОКАЗ КВАРТИРЫ ВОЗМОЖЕН НЕ РАНЬШЕ МАРТА.
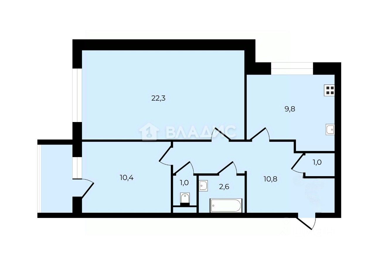
Продаётся 2-х комнатная квартира в Володарском районе площадью 58,5 кв.
Одна из комнат аккуратно зонирована. Это отличный вариант для комфортного проживания семьи с детьми.
Квартира расположена на четвёртом этаже 10-ти этажного панельного дома. Год постройки — 1992. Материал перекрытий — железобетонные плиты. В подъезде установлен новый лифт.
Квартира угловая, но теплая, пластиковые окна выходят во двор и улицу, хорошая входная дверь.
Просторная кухня 9,8 кв., в прихожей имеется кладовая, которую можно легко обустроить под шкаф.
Код объекта: 1381681. ПОКАЗ КВАРТИРЫ ВОЗМОЖЕН НЕ РАНЬШЕ МАРТА.
Продаётся 2-х комнатная квартира в Володарском районе площадью 58,5 кв.
Одна из комнат аккуратно зонирована. Это отличный вариант для комфортного проживания семьи с детьми.
Квартира расположена на четвёртом этаже 10-ти этажного панельного дома. Год постройки — 1992. Материал перекрытий — железобетонные плиты. В подъезде установлен новый лифт.
Квартира угловая, но теплая, пластиковые окна выходят во двор и улицу, хорошая входная дверь.
Просторная кухня 9,8 кв., в прихожей имеется кладовая, которую можно легко обустроить под шкаф.
Удачное месторасположение дома, обустроенная придомовая территория. Есть детская и спортивная площадки. Развита инфраструктура: в пешей доступности находятся школы, детские сады, магазины, аптеки и парки.
Мы гарантируем безопасную сделку. Поможем одобрить ипотеку, есть скидки от банков-партнеров.